Réalisation de plans architecturaux avec Archicad
Accompagnement complet pour vos projets de construction, dès la conception en passant par le permis de construire, démolire, déclaration préalable à l'exécution avec nos compétences en dessin. Pour les professionnel comme les particuliers.
Nous proposons un service complet de création de plans architecturaux professionnels à l'aide du logiciel Archicad. Que vous soyez un architecte, un ingénieur, un promoteur immobilier ou un particulier, nous vous accompagnons dans toutes les phases de conception de vos projets.
Nos services inclue :
1. Plans 2D détaillés
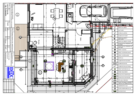
- Création de plans d’étage avec une représentation claire des murs, portes, fenêtres et cloisons.
- Plans de coupe, façades, et vues en élévation.
- Intégration des cotes et annotations nécessaires pour la compréhension technique.
2. Modélisation 3D
- Visualisation en 3D de votre projet avec rendus photoréalistes.
- Modélisation des structures et éléments architecturaux en BIM, permettant une coordination optimale entre les acteurs du projet.
3. Plans techniques complets
- Plans de fondations, structure (béton, acier, bois), réseaux électriques et sanitaires.
- Intégration des détails techniques et des spécifications selon les normes en vigueur.
4. Rendu et présentation
- Visualisations 3D réalistes pour des présentations commerciales ou pour un concours architectural.
- Images et vidéos de visites virtuelles pour mieux comprendre les espaces.
5. Collaboration BIM
- Partage des modèles BIM pour une collaboration fluide avec d'autres logiciels comme Revit, AutoCAD ou SketchUp.
- Gestion des données du bâtiment pour une meilleure coordination entre les parties prenantes du projet.
# Pourquoi choisir Archicad ?
- Flexibilité : Archicad permet une grande souplesse dans la conception et l’adaptation des projets.
- Précision : Chaque plan est détaillé avec une précision millimétrique, assurant une bonne exécution lors de la construction.
- Coordination : Le modèle BIM d’Archicad permet de mieux coordonner les informations techniques et d’éviter les erreurs sur chantier.
- Rendus : Les rendus en temps réel permettent une visualisation immédiate et convaincante de vos idées architecturales.
# Pourquoi nous choisir ?
- Expérience : Nous avons une expertise approfondie dans l’utilisation d’Archicad pour l'ensemble de vos projets













































































DDC MAÎTRISE D'ŒUVRE
Maîtrise d’œuvre pour vos projets de construction.
CONTACT
ADRESSE
contact@ddcmaitrisedoeuvre.com
+33 6 25 37 38 95
© 2024. All rights reserved.


42 rue Léon Paul Fiquet
31100 TOULOUSE
